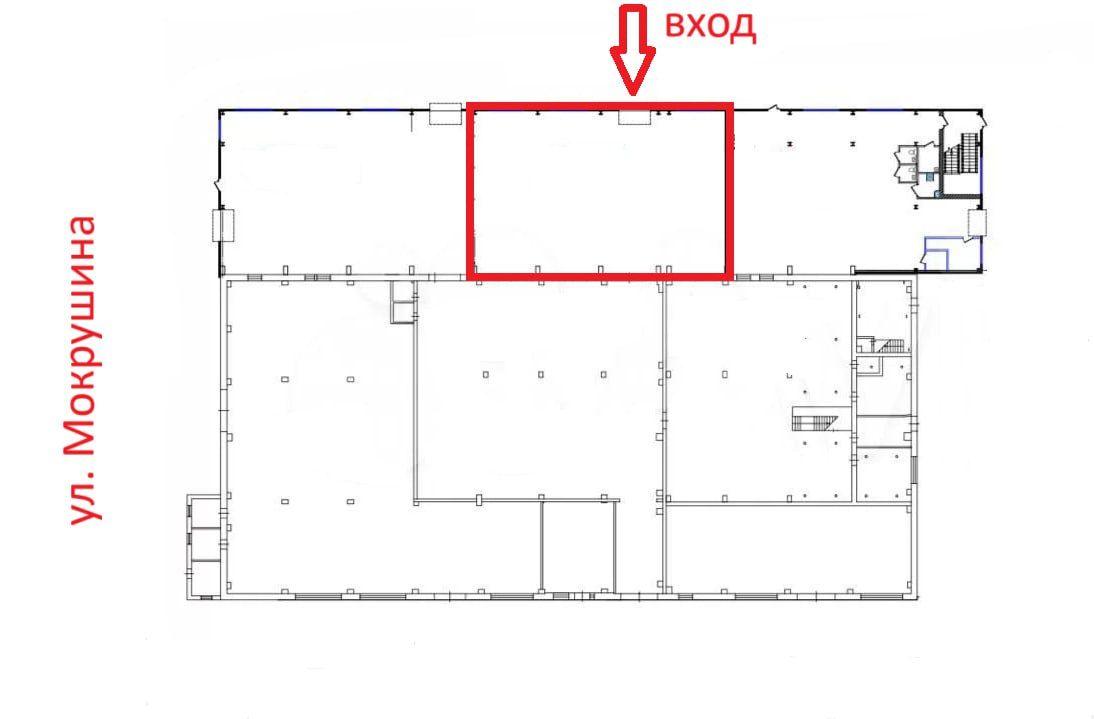
Помещение 370 кв.м. в торгово-складском комплексе

ул Мокрушина, д. 9

166 500 руб.

?

$ 1 086

€ 979

450 руб./м²


370 м²

1/2 этажей

Код объекта

129538

Предложение доступно для субагентов, авторизуйтесь

Помещение 370 кв.м. в торгово-складском комплексе

Код объекта: 129538.
Тип объекта: Складское помещение.
Площадь: 370 м².
Этаж / Этажность: 1 / 2.

Описание и характеристики

От собственника! Без комиссии!
Отдельный вход. Удобная логистика. Большой трафик (15-20 тыc челoвек в месяц). Удобный подъезд с местом для маневра грузового авто. Якорные соседи (СBETOФОР, Яндекс-Маркeт, CДЭК, EМЕMEХ)

Характеристики:
- Теплый склад
- Доступ 24/7
- ХВС/ГВС
- Свой санузел
- Автономное отопление (газ)
- Высота потолков 5 м
- Напольное покрытие - бетонный пол.
- Электричество 150 кВт (на весь комплекс заведено около 600 кВт).
- Подъездные пути под грузовой транспорт
- Видеонаблюдение, пожарно-охранная сигнализация
- Коммунальные услуги оплачиваются отдельно

По всем вопросам можете обращаться к представителю собственника: Григорий С.

Подписывайтесь на наш профиль, чтобы узнавать о новых локациях первым.

Перейти в карточку объекта в CRM: 129538.

Григорий

+7 923 409-90-80

или оставьте ваш номер, и я перезвоню в течение 30 минут

Отправляя заявку вы соглашаетесь на обработку персональных данных

166 500 руб.

?

$ 2 128

€ 1 808

450 руб./м²


370 м²

1/2 этажей

Код объекта

129538

Предложение доступно для субагентов, авторизуйтесь

Григорий

+7 923 409-90-80

или оставьте ваш номер, и я перезвоню в течение 30 минут

Отправляя заявку вы соглашаетесь на обработку персональных данных

Похожие объявления

Посмотреть все похожие объявления
1/6
Код объекта: 390612.
Тип объекта: Помещение свободного назначения.
Площадь: 500 м².
Этаж / Этажность: 2 / 2.
1/5
Код объекта: 382302.
Тип объекта: Помещение свободного назначения.
Площадь: 80 м².
Этаж / Этажность: 1 / 9.
1/9
Код объекта: 397309.
Тип объекта: Торговое помещение.
Площадь: 850 м².
Этаж / Этажность: 1 / 2.
1/11
Код объекта: 400160.
Тип объекта: Производственное помещение.
Площадь: 160 м².
Этаж / Этажность: 3 / 3.
1/5
Код объекта: 378485.
Тип объекта: Помещение свободного назначения.
Площадь: 42.7 м².
Этаж / Этажность: 1 / 5.

Не хочу искать, перезвоните мне!

Оставьте номер телефона, наш специалист свяжется с вами и поможет с подбором недвижимости!